Ninna- Ji à Kyoto 京都ã®ãƒ‹ãƒ³ãƒŠã‚¸å¯ºé™¢ - Espaces, formes et contours

Espaces, formes et contours

Architecture moderne, ancienne, égyptienne, géométrie, harmonie

Accéder au contenu

  • Raccourcis
  • FAQ
  • Connexion
  • Inscription
  • Espaces, formes et contours Espaces, formes et contours Catégories du forum Architecture Asie

Ninna- Ji à Kyoto 京都ã®ãƒ‹ãƒ³ãƒŠã‚¸å¯ºé™¢

Répondre
  • Aperçu avant impression
5 messages • Page 1 sur 1
Jean François
Site Admin
Messages : 2187
Inscription : 18 Juin 2018, 18:28

Ninna- Ji à Kyoto 京都ã®ãƒ‹ãƒ³ãƒŠã‚¸å¯ºé™¢

  • Citer

Message par Jean François » 07 Fév 2021, 20:24

Ninna-Ji Photo.jpg
(Cliquer sur l'image)
Ninna-Ji Photo 1.jpg
(Cliquer sur l'image)

Son immense toit nous met en émoi, porté par la simplicité et la légèreté de ses piliers de bois assemblés en de savants rectangles, si agréables à nos yeux, il courbe ses bords sous la tension de sa charpente, tel un oiseau qui veut prendre son envol.

Battons le fer tant qu'il est chaud, activons le feu avec un éventail de plusieurs temples analysés ensembles, dans un long processus de tâtonnement, tel Orphée au royaume des ombres, avançons et ne nous retournons pas sur ce que nous croyons savoir au 21 ème siècle, car il nous faut réapprendre à reconnaitre.

N 'ayons pas peur d'être intelligents, l'intelligence n'établit-elle pas les liens et les correspondances qui sympathisent avec l'harmonie?
ninna-ji-kyoto-2.jpg
(Cliquer sur l'image)

Mais attention, tout est ici bien gardé!


Ninna-Ji (2).PNG
(Cliquer sur l'image)


Bien gardé! Regardons...
jeanfrancoiswarein@gmail.com
Haut

Jean François
Site Admin
Messages : 2187
Inscription : 18 Juin 2018, 18:28

Re: Ninna- Ji à Kyoto 京都ã®ãƒ‹ãƒ³ãƒŠã‚¸å¯ºé™¢

  • Citer

Message par Jean François » 11 Fév 2021, 17:05

Ninna-Ji 1 (2).PNG
Ninna-Ji 2 (2).PNG
https://bunka.nii.ac.jp/suisensyo/kyoto ... ix7gL.html


O Ninna-Ji, je te regarde, t'observe, te démonte, te remonte, te mesure, te démesure, t'équilibre, te superpose aux cathédrales, aux Chapelles de Karnak, au Château de Chambord, aux autres temples du Japon, temples Chinois, grottes de Barabar, et même à un tableau de Da Vinci, à une carte du Tarot de Marseilles, à un mandala Tibétain ...à un art de la fugue, ou à un clavier bien tempéré de Bach, à la troisième leçon des ténèbres de Couperin, Yerushalayim...à la joie du safran...au parfum du lilas sous le chant du merle.,

Et puis je ne t'ai plus regardée, ni mesuré, ni censurée, je n'ai plus cherché à te voir, à avoir, à prévoir, à devoir, à me souvenir, même du souvenir du souvenir...

J'aurai aimé être là, franchir tes quelques marches, entrer par ta porte, porté par tes piliers de bois sur ton plancher parfait telle la surface d'une eau calme, marcher sur tes eaux, chaudes à mes pieds nus, sur ton ossature, être là dans ton rectangle parfait qui déjà raconte l'histoire de ceux par qui tu ne pouvais que naître, pour maintenant ne plus tenir, lâcher prise, renaitre, là, dans ton enceinte trouée de lumière.

Lumière de tes ouvertures, signifiantes comme des ouvertures d' Opéra de Mozart, rectangles opérant notre conscience du monde, notre perception intuitive, notre synchronicité, quand le temps se fond dans la chaleur de la matrice éternelle, espace de nos mouvements, jusqu'au simple clignement de nos yeux, mouillés devant ta beauté.

Les faits rien que les faits, sans juger, en ramassant les cerises sous les arbres qui nous murmurent le vent d'un peu de connaissance, sans devoir pour autant être chassés encore une fois du paradis originel, de ce si beau jardin des cerisiers en fleurs.
Ninna-Ji 5 (2).PNG
Mais les faits sont terribles, terribles à chaque fois, j'aurai tant aimer me tromper, revenir en arrière dans la tiède conformité rassurante, charmé par la pensée unique ou tout est différent et séparé, ou tout est semblable dans l'indifférence.

J'aurai aimé une bonne arithmétique, bien rationnel et apaisante, conformes aux formes du hasard, à l'harmonie du hasard, à la beauté accidentelle du hasard, à la parthénogénèse, sans éjaculation préméditée de la semence géométriques.



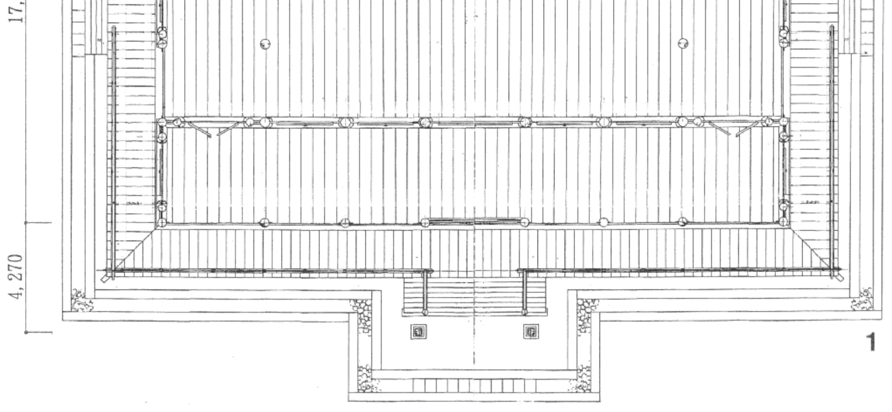
Le centre des piliers, ossature de Ninna-Ji forme un rectangle parfait, de rapport 1 et racine de 2, géométrique, non arithmétique, ses dimensions factuelles:

Longueur 25 mètres

Largeur 17.73 Mètres

c'est un rectangle formé par un carré de 17.73 mètres, je reste pantois...

Et ce carré donne une diagonale de 25 mètres, je chavire...

Deux solutions, soient deux irrationnels pour former ce rectangle, car pas de Shaku, ni de Tatami, c'est tout de même l'enceinte de l'édifice, sa surface sacrée...Si ce n'est 10 Bu Tang Chinois pour les 17.73 mètres...mais nous sommes au Japon, le Shaku n' a pas du tout la même valeur que le Chi Tang( 1/6 du Bu Tang)

Deuxième solution, ce serait 25.066 m, un parfait racine de 2, soit la diagonale du carré de 17.73 mètres qui forme notre fameux rectangle comme nos formats A4 de nos feuilles de classeur d'écolier, mais aussi la Petite Chapelle de Sésostris 1er, semence de cette terre de Karnak qui fera naître par la suite le plus grand complexe d'architecture en Egypte.


Ninna-Ji Protocole 1.PNG
Le carré bleu du plan se retrouve dans l'élévation car deux de ce carré apparaissent, un double carrés.

(Ne pas tenir compte des cercles qui viennent du plan juste au dessus et léger décalage entre le dessin du plan et de l'élévation malgré la remise à la même échelle.)


Ninna-Ji 6 (2).PNG
Plan et élévation pour voir leur carré commun au plan et à l'élévation.

Petit retour vers les autres temples, nous reviendrons un peu plus éclairés pour la suite.

(Pour s'inscrire sur le site espaces, formes et contours, passer par ma boite Mail d'abord, car trop de robots nous tombent dessus, sommes obligés de bloquer les inscriptions)

jeanfrancoiswarein@gmail.com
jeanfrancoiswarein@gmail.com
Haut

Jean François
Site Admin
Messages : 2187
Inscription : 18 Juin 2018, 18:28

Re: Ninna- Ji à Kyoto 京都ã®ãƒ‹ãƒ³ãƒŠã‚¸å¯ºé™¢

  • Citer

Message par Jean François » 15 Fév 2021, 23:26

Je vais bientôt revenir sur Ninna-Ji

Mais il nous faut bien visiter d'autres temples et trouver des mesures analogues, comme le ferait un prince qui rechercherait un soulier à la main le joli pied de Cendrillon.

Le carré de départ de Ninna-Ji est bien un carré de 17.73 m, malheureusement je ne suis pas Prince, mais j'ai trouvé cette mesure dans le temple de Kiyomizu-Dera, 17.7 m étant la hauteur de la base jusqu'au faîte du toit!

Nous allons donc ajouter à notre visite, sur la pointe de nos pieds nus, lentement, sagement sans déplacer de vent, à la lumière des levants, et allons entrer dans ce merveilleux temple de Kiyomitzu-Dera, bien sûr qu'avec notre esprit, notre corps est bien trop lourd nous dirait le Petit Prince, notre corps étant à l'autre bout du monde.

Grâce à la géométrie de notre corps et de la terre qui nous transportent dans l'espace et au delà du temps, nous allons unir à nouveau le visible à l'invisible...La terre et le ciel!
jeanfrancoiswarein@gmail.com
Haut

Jean François
Site Admin
Messages : 2187
Inscription : 18 Juin 2018, 18:28

Re: Ninna- Ji à Kyoto 京都ã®ãƒ‹ãƒ³ãƒŠã‚¸å¯ºé™¢

  • Citer

Message par Jean François » 12 Mars 2021, 23:44

https://www.bing.com/videos/search?q=Yo ... ORM=VDMCNR
jeanfrancoiswarein@gmail.com
Haut

Jean François
Site Admin
Messages : 2187
Inscription : 18 Juin 2018, 18:28

Re: Ninna- Ji à Kyoto 京都ã®ãƒ‹ãƒ³ãƒŠã‚¸å¯ºé™¢

  • Citer

Message par Jean François » 15 Août 2022, 17:27

(41) Mesure de mesure ancienne
Admin (21 août 2014 09h00)
Le design dure 1000 ans

"« 25 mètres brasse » et « kutu de 18 centimètres ». Tout le monde peut comprendre combien de temps cela dure en ayant une unité fixe de circulation.

La première fois que le Japon a essayé de déterminer la longueur en unités communes, c’était pendant la période Fujiwara Kyo, lorsque le shaku et les dimensions (un dixième de l’échelle) ont été utilisés. Bien que la mesure et la dimension aient été interdites en tant qu’unités publiques en 1958, elles sont toujours utilisées dans le monde des artisans traditionnels. Il vit aussi dans les mots, tels que le shakuhachi des instruments de musique et les dimensions des vêtements.

En 701, la longueur fixée par la Grande Ordonnance du Trésor s’appelait le Xiaoshaku, et elle a été apportée de la dynastie Tang. En dehors de cela, une unité utilisée pour l’arpentage des terres appelée à grande échelle a également été créée. C’était 1,2 fois la taille de la petite échelle, et était également appelé le Koma Shaku. L’année suivante, les dirigeants standard ont été répartis dans tout le pays.

À partir de Fujiwara-kyÅ et HeijÅ-kyÅ, des mesures de cette époque ont été fouillées. Le plus élaboré d’entre eux est celui fouillé du palais HeijÅ sur la photo. Cela nous indique que la longueur de la petite échelle était d’environ 29,6 cm.

Chaque dimension est divisée en grande partie, puis séparée par la moitié de celle-ci, et l’échelle la plus fine est d’un dixième de taille (1 minute). Et aux 5 dimensions, je dessine un petit cercle pour le rendre facile à comprendre. C’est une différence entre la taille et le centimètre, mais c’est la même chose que le bâton de mesure en bambou de 30 cm vendu dans les magasins de papeterie même maintenant. Vous serez émerveillé par sa conception, qui dure plus de mille ans.

À l’origine, en Chine, le shaku était la longueur du pouce ouvert et du majeur, et la taille était la largeur du pouce. Il s’est progressivement étendu et transmis au Japon, et au moment où il a été aboli à l’époque Showa, l’échelle est devenue 30,3 cm. Même sans la vieille histoire du vieil homme que vous connaissez, le marteau du marteau, il grandissait petit à petit."



Trouvé sur ce site au Japon ! https://www.nabunken.go.jp/nabunkenblog ... ken41.html

C'est bien ce que nous pensions, le Xiaoshaku fut importé de Chine de la Dynastie Tang.

A Fujiwara-kyÅ et HeijÅ-kyÅ, c'est le Chi Tang qui a été utilisé !
Fujiwara-kyÅ.jpg
( Cliquere sur l'image)
https://hayabusadandy.wixsite.com/shimeha/home


Nina-Ji, pas seulement puisque à chaque fois dans plusieurs temples nous avons trouvé ces 17.72 mètres qui ne sont rien d'autres que 60 Chi Tang, a donc bien pour son plan un rectangle racine de 2, partant d'un carré de 60 Chi Tang de côtés qui est curieusement semblable à notre Clima romain retrouvé à Boscodon !

L'auteur ici donne cette mesure pour le Chi Tang environ 29.6 centimètres, l'équivalant exact du pieds romain...

Le Shaku Japonais même s'il sera adopté par la suite, je le rappelle de 0.3030 mètre, sera certainement la création de la culture Japonaise, de sa science, puisqu'elle ramènera son Shaku impérial à un multiple du rayon de la terre, donc géodésique, puisque 21000000 de Shaku de rayon dessine son disque !

Le Chi Tang est lui aussi géodésique, puisqu'il s'accorde en quadrature surface avec le Chi Zhou qui a la valeur exacte de notre empan du moyen âge ( 20 centimètres), mais aussi en quadrature surface avec la meh nessou Egyptienne !

Donc géodésique...
jeanfrancoiswarein@gmail.com
Haut

Répondre
  • Aperçu avant impression

5 messages • Page 1 sur 1

Revenir vers « Asie »

Atteindre
  • Catégories du forum
  • ↳   Architecture
  • ↳   Afrique
  • ↳   Architecture de l'Egypte ancienne
  • ↳   Géométrie de la pyramide de Khéops
  • ↳   La petite Chapelle de Sésostris 1
  • ↳   Gizeh : disposition géométrique des pyramides
  • ↳   La pyramide d'Abu Rawash : Redjedef
  • ↳   L'enceinte de Djeser bâtie sur PI ?
  • ↳   Anciennes mesures de surface
  • ↳   A la recherche du Cadastre ...
  • ↳   Les chapelles de Sésostris 1er
  • ↳   La pyramide de Meidoum
  • ↳   le complexe d'Amenemaht III
  • ↳   La chapelle rouge de Karnac
  • ↳   Les chapelles d'albâtre
  • ↳   Le tombeau de Toutânkhamon
  • ↳   Khéphren
  • ↳   Mykérinos
  • ↳   Europe
  • ↳   La cathédrale de Chartres
  • ↳   Notre Dame de Paris
  • ↳   Stonehenge
  • ↳   Chambord
  • ↳   Amériques
  • ↳   Asie
  • ↳   Australie
  • ↳   Arts visuels et kinesthésiques
  • ↳   Afrique
  • ↳   Amériques
  • ↳   Asie
  • ↳   Australie
  • ↳   Europe
  • ↳   la peinture et les 3 tables
  • ↳   Léonard De Vinci
  • ↳   La Cène
  • ↳   L'Annonciation
  • ↳   Sandro Botticelli
  • ↳   La naissance de Vénus
  • ↳   L'Annonciation de Botticelli
  • ↳   La Calunnia di Apelle
  • ↳   Piero Della Francesca
  • ↳   Ecrits
  • ↳   Afrique
  • ↳   Textes hiéroglyphiques
  • ↳   Amériques
  • ↳   Australie
  • ↳   Asie
  • ↳   Europe
  • ↳   En vrac
  • ↳   Musique
  • ↳   Afrique
  • ↳   Amériques
  • ↳   Asie
  • ↳   Australie
  • ↳   Europe
  • ↳   Sciences et techniques
  • ↳   Afrique
  • ↳   Amériques
  • ↳   Asie
  • ↳   Australie
  • ↳   Europe
  • ↳   Sciences Humaines
  • ↳   Afrique
  • ↳   Amériques
  • ↳   Asie
  • ↳   Australie
  • ↳   Europe
  • ↳   Hors sujets en vrac
  • Espaces, formes et contours Espaces, formes et contours
  • Le fuseau horaire est réglé sur UTC+02:00
  • Supprimer tous les cookies du forum
  • Nous contacter

Développé par phpBB® Forum Software © phpBB Limited

Traduction française officielle © Maël Soucaze

PRIVACY_LINK | TERMS_LINK