Page 1 sur 1

Sainte Sophie...Sophia !

Publié : 23 Août 2022, 14:09
par Jean François
Sainte Sophie Chrétienne.png
( Cliquer sur l'image)
(Reconstitution pas très heureuse...)

Sainte Sophie dome.jpg
(Cliquer sur l'image)



Basilique Sainte Sophie ou Mosquée, l'architecture est langage universel..

Quelle que soit la parure, l'architecture reste la même !

Première moisson de mesures de notre Sophia.

Harmonie et sagesse...L'harmonie est sagesse !



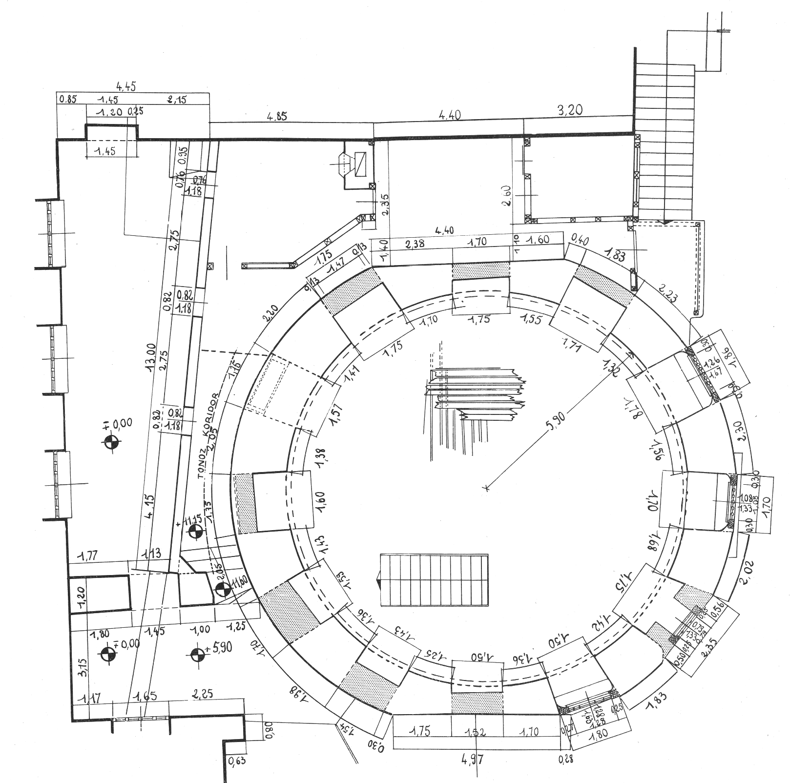
Sainte Sophie Plan A (2).PNG
( Cliquer sur l'image)



C'est édifiant !

Il y a des Clima et des Hectos...

Le Clima romain, 314.16 mètres carrés et l'Hectos grec, 157.08 mètres carrés, la moitié.

Les quatre demi cercles, quatre conques, font de surface, ensembles, 1 clima ou 2 Hectos !

Puisqu'un seul demi cercle fait 157 mètres carrés, mais avec son cercle entier sur le dessin.

Voici certainement l'unité surface, le vrai module...celui dont parle Vitruve !

Les rapports de surface des différents carrés et rectangles sont géométriques...un feu d'artifice !

Sophia, féminin de Dieu, est la matrice ici du langage des pierres.
Vue-aerienne-basilique-Sainte-Sophie-Istanbul-devenue-musee-28-2020_0_729_486.jpg
( Cliquer sur l'image)

NB: Des décalages dans ce plan pas toujours précis...Nous partons en recherche d'un autres plan...

Re: Sainte Sophie...Sophia !

Publié : 23 Août 2022, 15:47
par Olivier
Bonjour Jean François,

tu nous gâtes, cela fait beaucoup de cadeaux magnifiques cet été !

Merci !!!

Re: Sainte Sophie...Sophia !

Publié : 23 Août 2022, 21:06
par Olivier
Selon Wikipédia, https://fr.wikipedia.org/wiki/Sainte-So ... antinople)
Sainte-Sophie (du grec Ἁγία Σοφία, Hagía Sophía, qui signifie « sagesse de Dieu », « sagesse divine », nom repris en turc sous la forme Ayasofya) est une ancienne église devenue mosquée, située à Istanbul, dans l'ancienne Constantinople sur le côté ouest du Bosphore.

À l'origine basilique chrétienne, elle est construite dans un premier temps au IVe siècle, puis reconstruite bien plus grande au VIe siècle sous l'empereur byzantin Justinien, où elle acquiert sa forme actuelle. Souvent surnommée « la Grande Église », elle est le plus important monument de l'architecture byzantine et demeura l'une des plus prestigieuses églises de la chrétienté jusqu'au XVe siècle.
Selon wikiki (https://fr.wikipedia.org/wiki/Sophia_(philosophie))
Sophia (en grec ancien : Σοφíα) est un terme du platonisme, du gnosticisme, de l'Église orthodoxe, de la philosophie grecque de philosophie chrétienne, du mysticisme chrétien, du christianisme ésotérique, et de la religion hellénistique : il désigne la sagesse. La sophiologie est un concept philosophique sur la sagesse et un concept théologique sur la sagesse de Dieu et son aspect féminin. Chez Socrate et Platon, la sophia est une vertu essentielle du gouvernant lui permettant de voir les essences.
Par delà de tous ces blabla (Sartre etc ..), c'est bien la pierre qui parle pour faire mentir tous les obscurantistes.

Aurait-on retrouvé les premiers blocs du langage universel des pierres d'avant la tyrannie de Babel ?

Re: Sainte Sophie...Sophia !

Publié : 24 Août 2022, 01:19
par Jean François
Sainte Sophie Plan B (2).PNG
( Cliquer sur l'image)

Bonjour Olivier

Les quatre fois quatre colonnes aux quatre coins de Sainte Sophie font chacune un rectangle de surface d'...1 Hectos

Je crois rêver...

Si nous prolongeons chaque conque en cercle entier, elles ont chacune à leur côté quatre colonnes dont les centres forment un rectangle qui a même surface que leur cercle entier.

Le ciel est cercle, la terre est carrée ou rectangle, la terre est... Sophia !

..."Que ta volonté soit faite sur la terre comme au ciel"... !

Re: Sainte Sophie...Sophia !

Publié : 24 Août 2022, 18:32
par Jean François
Un temps de réflexion !

Trop de choses perturbantes, de rapports déroutants...Bref nous sommes encore très loin de la sagesse, de Sophia !

On apprend petit à petit.

157.08 mètres carrés devraient être plutôt considérés comme un demi Clima.

Nous allons prendre le temps de travailler sur les mesures Grecques et leurs concordances avec les mesures Romaines, Byzantines et Egyptiennes, mais aussi d'Asie puisque Byzance est au frontière.

J'ai aussi un doute sur la valeur officielle du pied Byzantin, que des spécialistes ont fait émerger des différentes confrontations des mesures sur édifices Byzantins, persuadés qu'ils sont que tout est arithmétique, alors que nous pensons ici que tout est géométrie...

Surtout qu'un excellent relevé du Skevophylakion de Sainte Sophie, dont le cercle intérieure fait 11.80 mètres de diamètre, ce qui le met en quadrature surfacique avec le carré intérieur de la Tholos de Delphes, soit un carré de '4 Meh !

Encore !

Faudra bien un jour lâcher prise et arrêter de tout voir par l'arithmétique.

"Nul n'entre ici s'il n'est géomètre"( Platon)

Le relevé est magnifique, on aimerait en rencontrer partout...malheureusement c'est plutôt rare.
LE SKEVOPHYLAKION DE SAINTE-SOPHIE 1.png
( Cliquer sur l'image)
Sainte Sophie élévation sacristie.png
( Cliquer sur l'image)

https://www.persee.fr/doc/rebyz_0766-55 ... nte+Sophie


Peut-être faudra-t-il remettre en question beaucoup de certitudes que nos spécialistes d'aujourd'hui ont sur les mesures anciennes, certitudes ou hypothèses...

Le singe de Thot en sait plus long que nous tous sur les certitudes et les miroirs déformants...

Re: Sainte Sophie...Sophia !

Publié : 25 Août 2022, 18:09
par Jean François
D'après les recherches, pas véritablement de mesure Byzantine, elles balancent entre celles des Romains et des Grecs !

Justinien aurait au VIème siècle après notre ère essayé de remettre un peu d'ordre dans les mesures locales mais rien ne dit que le pieds Byzantin serait de 0.3125 mètres, ce ne sont que supposition, position d'hypothèse...

Même s'appuyer sur le dôme de sainte Sophie qui n'est pas parfaitement rond et varie de 31.4 mètres son plus grand diamètre, à 30.85 mètres, le plus petit.

Et puis le maitre d'oeuvre n'utilise pas les mesures locales mais celles que la tradition orale et la tradition du geste lui ont été transmises...

Tabula rasa....Faisons silence, car les murs de pierre, même en brique de terre cuite ou crue, murmurent toujours, écoutons les !

Re: Sainte Sophie...Sophia !

Publié : 26 Août 2022, 01:43
par Jean François
Carré Meh et sacristie Sainte Sophie (2).PNG
( Cliquer sur l'image)

Quatre carrés Meh reportés en carré !

Nous les voyons souvent et pourtant invisibles !

Carré Meh sacristie Sainte Sophie 1 (2).PNG
( Cliquer sur l'image)

Le cercle qui a la même surface que les quatre carrés Meh est le cercle intérieur du Skevophylakion de Sainte Sophie

Sainte Sophie élévation sacristie (2).png
Carré Meh sacristie Sainte Sophie 2 (3).PNG
( Cliquer sur l'image)

Reporté sur le plan la moitié gauche du cercle extérieur est différente de sa moitié droite, on perçoit nettement l'épaisseur des murs à droite plus faible, suffit de regarder les mesures.

Par contre le cercle intérieur est parfait.

Le cercle extérieur lui n'est pas rond puisque légèrement aplatit, comme notre bonne planète, et de plus coupé par deux pans, au Nord de 5.68 mètres ( et non 4.4 mètres car 2.38+1.7+1.6 donnent 5.68 et pas 4.4?!?) et au Sud de 4.97 mètres ( en effet 1.72+1.52+1.7 donnent 4.97 mètres

Et Nord et Sud sont en quadrature surface, carré de 5 m de côté même surface qu'un cercle de diamètre de 5.64 m )


A gauche le carré de quatre Meh s'inscrit dans le cercle extérieur, et a même surface que le cercle intérieur qui est lui parfait.

Tout comme le socle de la Tholos de Delphes qui inscrit les quatre carrés Meh !

Pour Notre Dame de Paris l'hémicycle du Chœur était cette fois non un cercle de même surface que les quatre carrés Meh, mais de même périmétrie !

Skevophylakion est une porte d'entrée !

En passant par le Skevophylakion, la sacristie, pourrons nous franchir le chœur de Sainte Sophie, entendre battre le cœur de Sofia ?

Faudra s'accrocher !

Car avec Isidore de Milet, Mathématicien, Géomètre et Anthémius de Tralles, Mathématicien, Géomètre et Architecte, comme concepteurs, la pente est raide...

Re: Sainte Sophie...Sophia !

Publié : 27 Août 2022, 15:48
par Jean François
Beaucoup de choses possibles en travaillant sur les plans de Sainte Sophie, c'est une mine d'or !

Mais, mais, mais les trois plans généraux pourtant de belles factures ne donnent pas les mêmes mesures, jusqu'au positionnement des colonnes qui ne sont pas tout à fait semblables...affligeant...

Certains plans donnent la mesure maximale pour le dôme à 31.4 mètres, d'autres 31.25 mètres, par contre des minimales assez semblables, autour de 30.80 mètres.

Mais nous pouvons nous appuyer maintenant sur les bons outils, les bons gestes qui émergent dans tout ce que nous avons abordé dans l'architecture ancienne de notre planète...

Cette fois peut être, enfin, que la concordance des gestes sera la vraie mesure !