Chapelle Rouge d'Hatchepsout... - Espaces, formes et contours

Espaces, formes et contours

Architecture moderne, ancienne, égyptienne, géométrie, harmonie

Accéder au contenu

  • Raccourcis
  • FAQ
  • Connexion
  • Inscription
  • Espaces, formes et contours Espaces, formes et contours Catégories du forum Architecture Afrique Architecture de l'Egypte ancienne La chapelle rouge de Karnac

Chapelle Rouge d'Hatchepsout...

Répondre
  • Aperçu avant impression
38 messages
  • 1
  • 2
  • Suivant
Jean François
Site Admin
Messages : 2156
Inscription : 18 Juin 2018, 18:28

Chapelle Rouge d'Hatchepsout...

  • Citer

Message par Jean François » 05 Août 2020, 18:08

Bonjour à tous

Je vois bien qu'au nombre de vue des lecteurs, les chapelles ne sont pas au top...au clic plutôt!

Pourtant elles sont du sirop de sublime et du concentré de savoir...


Malgré leur apparente simplicité tout comme l'andante du 23 ème concerto de Mozart, elles sont le fruit d'un immense savoir qu'avaient les scribes des formes et des contours, savoir qui nous est offert si nous acceptons que ce qui nous est visible, cache des protocoles invisibles.

Mozart ne me contredira pas, lui qui restera fasciné quand il eut en main le grimoire de Jean Sébastien Bach sur l'Art de la Fugue.

Nous avancerons doucement, mais commencerons les pieds dans le plat en remettant en question la reconstruction de cette sublime anastylose qui malheureusement fut reconstruite avec une demi meh nessou de moins dans sa longueur, 29.5 au lieu de 30 meh nessou, ce qui a pour effet de mettre un bémol de moins à la clef...et du point de vue harmonique cela s'entend, les fausses notes...

En effet, nous le verrons, le choix qui s'imposait, vus quelques manques à l' anastylose, était soit 29 meh nessou, 29.5 ou 30...C'est 29.5 qui malheureusement a été choisi.

Forcément si la géométrie et l'harmonie ne font plus parties des outils d'analyse d'une œuvre architecturale, reste le pifomètre...(Pourtant le sphinx ne semble pas le connaître)

Nous déploierons toutes les raisons qui font qu'une demi meh nessou en moins et tout est désolation.... :D

Amitiés

Jean François
jeanfrancoiswarein@gmail.com
Haut

Jean François
Site Admin
Messages : 2156
Inscription : 18 Juin 2018, 18:28

Re: Chapelle Rouge d'Hatchepsout...

  • Citer

Message par Jean François » 10 Août 2020, 16:59

https://www.nakala.fr/nakala/data/11280/ba7c5413

Avant d' entrer dans l'analyse de cette Chapelle rouge, nous vous invitons à parcourir attentivement un des Cahiers de Karnak, très intéressant travail de Jean François Carlotti.
jeanfrancoiswarein@gmail.com
Haut

Olivier
Site Admin
Messages : 870
Inscription : 17 Juin 2018, 20:39

Re: Chapelle Rouge d'Hatchepsout...

  • Citer

Message par Olivier » 11 Août 2020, 01:46

Chapelle_Rouge.jpg
(photo prise sur wikipédia)

murSud.jpg
murNordVestibule.jpg
murNordVestibule.jpg
porteEst.jpg
porteEst (1).jpg
murNord.jpg
Avec nos sincères remerciements pour ces photos prises sur http://www.temples-egypte.net/karnak/mu ... pelle.html

Si jamais le lien vers les travaux de Carlotti deviendrait indisponible, une copie ici :
Carlotti_141-166.pdf
(1.39 Mio) Téléchargé 870 fois
Amitiés,
Olivier
Haut

Jean François
Site Admin
Messages : 2156
Inscription : 18 Juin 2018, 18:28

Re: Chapelle Rouge d'Hatchepsout...

  • Citer

Message par Jean François » 11 Août 2020, 16:12

Bonjour Olivier

Merci pour les photos et ta venue dans La Chapelle rouge, plein de travail passionnant de restauration.

Justement essayons de répondre avec logique et surtout harmonie.

Si on ne sait pas l'exacte longueur, manque de pierre, on peut supposer, en comparaison avec une autre chapelle et certainement celle d' Amenhotep 1er qui la précède, qui elle aussi a son sanctuaire de 8 Meh nessou de large et 15 de longueur et 10 de hauteur...qu'elle a pu s'en inspirer !

Mais, mais, mais...celle qui succèdera à celle d'Hatchepsout sera La Chapelle dite de Philippe Arrhidée, en place encore aujourd'hui.

Si on dit que celle d'Hatchepsout a pris les mesures de celle d'Amenhotep, alors celle de Philippe Arrhidée a donc pris les mesures d'Hatchepsout...

Le problème est que celle de Philippe Arrhidée ne fait pas 15 Meh nessou mais 15 plus 1/2 Meh nessou et autant 8 Meh nessou de largeur...

Donc La Chapelle rouge peut autant avoir eu un 15 et 1/2 Meh nessou de longueur tout comme celle de Philippe...

Surtout que celle d'Hatchepsout pour déduire qu'elle faisait 15 Meh nessou, il fut choisi qu'elle devait avoir 26 corbeilles-neb...

Tout en sachant qu'il était possible qu'elle en ait 27...3x9 n'est-il pas préférable à 2x13...et 27 auraienr donné au sanctuaire 15.5 et à la Chapelle 30 meh nessou.

Et de même en prenant chaque possibilité si bien analysée par Carlotti..

Mais pourquoi avoir choisi 29 et 1/2 au lieu de 30 Meh nessou de longueur totale, et un sanctuaire de 15 au lieu de 15.5 Meh nessou ...

Car si nous prenons 30 et 15.5

Surface de l'implantation des murs externes 12x12 et 12x18 soit 144 et 216 total 360 Meh nessou carré

Salle d'entrée plus sanctuaire, 7x8 et 15.5x8 soit 56 et 124 total de 180 Meh nessou carré




Les anciens Égyptiens devaient refaire les nomes après chaque crue de l'Itérou, recalculer les surfaces, et comme ils avaient la plus belle palette de mesure de surface, la plus élaborée et savante, la mieux tracée, basée sur les racines de 2, 5 et 10, que toutes les autres civilisations et notre modernité confondue, c'est bien Seth s'ils ne l'utilisaient pas pour mettre en logique et harmonie des rectangles...

La surface interne est donc la moitié exacte de la surface au sol de toute la chapelle...

Cette propriété fondamentale sur les rapports de surface aurait dû faire pencher en faveur du choix d'un sanctuaire de 15 et 1/2 meh nessou, tout comme celui de Philippe qui lui succède et un 30 meh nessou de longueur totale, puisque la distance entre les portes du sanctuaire devenue diamètre d'un demi cercle, l'arc mesure parfaitement cette longueur totale de 30 meh nessou...( Mais nous verrons cette autre propriété en temps voulu et il y en a beaucoup d'autres)

Le 216 obtenu au dessus correspond aussi au 216 de La Chapelle de Philippe...en effet 11.5x8 plus 15.5x8 de ses deux pièces donnent aussi 216...

Les volumes maintenant sont aussi en harmonie par duplication, avec la hauteur sous plafond, tout comme les surfaces...puisque la hauteur est 10 sous plafond, avec dessus 11 en externe, une autre mais très belle harmonie.

Volume externe 3960, soit 3600 +360, meh nessou cubique et interne 560 plus 1240, un joli 1800 Meh nessou cubique ou 2160-360 :D .

Rapport 22/10

Avec 29.5 Meh nessou...désert...pas de sens, de rapport de longueur, de surface, de volume significatifs, rien ne tombe juste...

Nous allons continuer de soulever les possibilités harmoniques nombreuses d'un 30 de longueur et 15.5 pour le sanctuaire qui malheureusement ne font que recouvrir toute possibilité harmonique quelles qu'elles soient avec 29.5 et 15 ou avec la meilleure volonté, je m'épuise dans le désert....

L'autre possibilité qui était de 29, s'éloigne davantage encore que 29.5, laissant toutes les options architecturales à 30 et 15.5.

Oui de langage architecturale et non de pifomètrie pour la largeur et la longueur d'un hangar... :lol:

Amitiés

Jean François qui a très chaud sous la canicule...et qui vient d'enlever un paragraphe, la chaleur lui ayant mis un doute qui n'avait pas lieu...ayant confondu le devant et l'arrière de la Chapelle, sainte Mère de Dieu... :D
jeanfrancoiswarein@gmail.com
Haut

Jean François
Site Admin
Messages : 2156
Inscription : 18 Juin 2018, 18:28

Re: Chapelle Rouge d'Hatchepsout...

  • Citer

Message par Jean François » 13 Août 2020, 15:46

En observant les plans de Carlotti, je m'aperçois que les valeurs réelles sont systématiquement majorées.

L'auteur semble vouloir absolument que la valeur de la coudée royale, la meh nessou soit un yoyo, puisque la valeur factuelle du socle au plafond est bien 5.23 m, majoré à 5.25 pour que toutes les mesures fonctionnent mieux pour la subdivision en shesep et djébâ, selon Carlotti.

Nous nous fierons par contre ici aux mesures factuelles de l'anastylose, sans majoration, ni minoration tout en considérant que la valeur de la coudée n'a jamais variée tout au long de son histoire.

Chevrier avait donné d'ailleurs comme mesure 5.235 m exactement, nous nous fierons au pionnier de la découverte, surtout que Carlotti a majoré systématiquement toutes les mesures pour les donner en coudée dans les parenthèses



Nous commencerons avec le carré Meh surface qui je le rappelle engendrera les entiers et les pas entiers, irrationnels et transcendants.

Que ce soit La petite Chapelle de Sésostris ou la Chapelle Blanche qui fut le premier édifice sur la terre de Karnak, ou La Chapelle rouge et celle de Philippe Arrhidée et toutes les autres...

Tout commence par:

Soit un carré Meh...

Pour la chambre du roi Khoufou, c'était deux carrés Meh, surface du sol...

Pour la rouge, ce sera d'entrée trois carrés Meh...

Bientôt les croquis!

Amitiés

Jean François

NB Retiré une partie qui n'était qu'un brouillon qui s'est retrouvé malencontreusement avec le copié collé. Je reviendrai plus sérieusement sur le temple de Salomon à propos des mesures entières et non entières...
jeanfrancoiswarein@gmail.com
Haut

Jean François
Site Admin
Messages : 2156
Inscription : 18 Juin 2018, 18:28

Re: Chapelle Rouge d'Hatchepsout...

  • Citer

Message par Jean François » 22 Août 2020, 20:03

Chapelle rouge Meh 1 (2).PNG
(Cliquer sur l'image)

Après avoir constaté que les surfaces intérieures sont la moitié exacte de la surface de toute la Chapelle rouge au sol, si nous choisissons 15.5 pour la longueur du sanctuaire et 30 meh nessou pour la longueur totale, nous nous apercevons que trois carrés meh peuvent s'y loger.

Malheureusement, comme nous le voyons sur cette élévation la Chapelle a été reconstruite en ayant choisis parmi les trois possibilités viables de 29, 29.5, 30 meh nessou, le 29.5.

Résultat sa longueur n'entre pas dans les trois carrés Meh, nous voyons qu'ils dépassent d'une demi meh nessou...

Le carré Meh est une mesure de surface, une coudée de terre, d'une coudée sur cent, d'une meh nessou sur cent, mis en carré de 10 meh nessou de côté.

Nous avions vu qu'il était au commencement des Chapelles de Sésostris, la Petite comme pour la Blanche.

Ici c'est l'élévation, les trois carrés devraient s'inscrire parfaitement dans la longueur, tout comme il s'inscrivent dans la hauteur intérieure, sous le plafond.
Chapelle rouge Meh 2 (2).PNG
(Cliquer sur l'image)
Le plan nous révèle aussi les trois carrés, passant par l'exact milieu des murs latéraux, dépassés d'une seule meh nessou sur les côtés.

La diagonale de ces 3 carrés nous préfigure le côté du carré Cha, autre mesure de surface de l'Ancienne Egypte.

C'est après avoir constaté les rapports de surface intérieure et extérieure, la deuxième raison pour que la Chapelle d'Hatchepsout ait un sanctuaire de 15.5 meh nessou tout comme celle de Philippe Arrhidée qui lui succédera, et bien évidemment une longueur de 30 meh nessou.

Demain la troisième raison...d'ailleurs conséquence de la deuxième...
jeanfrancoiswarein@gmail.com
Haut

Jean François
Site Admin
Messages : 2156
Inscription : 18 Juin 2018, 18:28

Re: Chapelle Rouge d'Hatchepsout...

  • Citer

Message par Jean François » 24 Août 2020, 19:35

( Je rappelle que plans et élévations utilisés sont les officiels, avec une reconstruction à 29.5 meh nessou, alors que nous travaillons ici avec les 30 meh nessou que nous considérons comme juste, pour cela nos tracés débordent toujours d'une demi meh nessou à la sortie du sanctuaire)


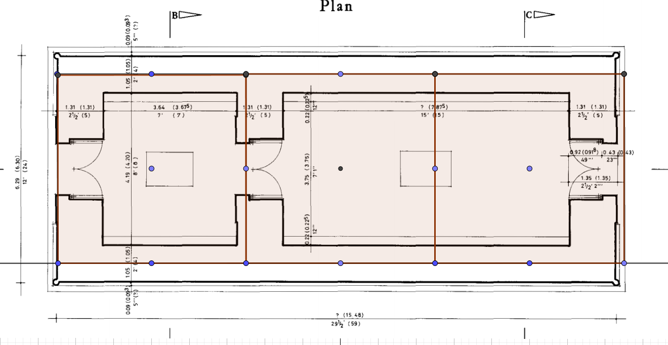
Pour la Troisième raison, intéressons nous non au sanctuaire lui même, mais à la chambre qui le précède.

Cette Chambre est de 8 meh nessou de largeur et de 7 meh nessou de longueur.

La périmétrie de cette chambre éclaire le manque de cette demi meh nessou, puisque 2(7+8) déroule bien un 30 meh nessou de longueur pour la Chapelle rouge.
Chapelle Rouge 12 (2).PNG
(Cliquer sur l'image)

Et le diamètre du cercle de même périmétrie que cette chambre est donnée par l'espace entre la porte d'entrée de la Chapelle et la porte d'entrée du sanctuaire...

L'espace entre sa porte d'entrée et la porte d'entrée du sanctuaire est de 5 mètres...

Ce cercle se déroule donc sur toute la longueur de la Chapelle, quelle belle roue solaire!
Chapelle rouge 15 (2).PNG
(Cliquer sur l'image)

Nous voyons ici à gauche le carré de 12 meh nessou, et à droite le rectangle de 6+12=18 sur 12 meh nessou...(144+216=360 meh nessou carré pour la surface, double de l'intérieur qui a 180 meh nessou carré)

Autre raison que nous inclurons dans cette troisième car elle semblera anecdotique pour certains, la surface de l'intérieur du sanctuaire, 15.5X8=124 a le rayon de son cercle de même aire exactement équivalent à 2 Pi meh nessou...)

Mais pour cela, il nous faut considérer qu'à sa reconstruction, il a bien manqué 1/2 meh nessou...

En effet son implantation devrait être bien un rectangle de 5/2!
Chapelle rouge Aawi (2).PNG
Tout comme les 3 carrés Meh, les espaces entre les portes délimitent aussi 3 carrés, mais ici de 5 mètres de côtés, 2.5 Aawi( Aawi: Largeur de la petite Chapelle de Sésostris) ou 25 Empans du moyen âge...

Bien évidemment pour notre scribe des formes et des contours de l'ancienne Égypte, c'est un nombre pas entier en meh nessou, un irrationnel obtenu par tracé géométrique.

C'est ici la Quatrième raison, il manque bien une demi meh nessou pour obtenir ces 3 carrés!...
jeanfrancoiswarein@gmail.com
Haut

Jean François
Site Admin
Messages : 2156
Inscription : 18 Juin 2018, 18:28

Re: Chapelle Rouge d'Hatchepsout...

  • Citer

Message par Jean François » 25 Août 2020, 00:47

( Je rappelle que plans et élévations utilisés sont les officiels, avec une reconstruction à 29.5 meh nessou, alors que nous travaillons ici avec les 30 meh nessou que nous considérons comme juste, pour cela nos tracés débordent toujours d'une demi meh nessou à la sortie du sanctuaire)
Chapelle rouge Meh 2 (2).PNG
(Cliquer sur l'image)


Voici les 3 carrés Meh


Chapelle rouge carré 12 (2).PNG
(Cliquer sur l'image)

Voici le rectangle 5/2 de la Chapelle.


Chapelle rouge Meh 5 (2).PNG
(Cliquer sur l'image)

Voici les 3 carrés Meh, ramenés à 2.5 carrés Meh, rectangle de proportion 5/2 semblable à la surface externe, ils entrent dans l'intérieur de la Chapelle pour une longueur interne de 25 meh nessou!

Ces 25 meh nessou nous ramènent à l'espace entre nos portes d'entrée de la Chapelle jusqu'aux portes d'entrée du sanctuaire.

En effet le rapport entre ces deux mesures est comme Phi carré et un!

Cinquième raison pour laquelle il manque bien à la reconstruction une demi meh nessou, pour obtenir nos 25 meh nessou de distance interne.

Rappelons que les murs d'entrée et de sortie font chacun 2.5 meh nessou et les murs des côtés 2 meh nessou

Une Sixième raison pour pencher le sanctuaire vers les 15.5 meh nessou de longueur, au lieu des 15 choisis, avec en prime la demi meh nessou bien méritée, est qu'un hexagone de 15.5 meh nessou de côté a même surface qu'un carré de 25 meh nessou de côté! :shock:
Chapelle rouge 19 (3).PNG
Je me mets un entonnoir sur la tête et je lis l'Apologie de la Folie selon Érasme avant une bonne nuit bien méritée... :lol:

Et demain la Septième raison...qui n'est pas la dernière!
jeanfrancoiswarein@gmail.com
Haut

Jean François
Site Admin
Messages : 2156
Inscription : 18 Juin 2018, 18:28

Re: Chapelle Rouge d'Hatchepsout...

  • Citer

Message par Jean François » 26 Août 2020, 10:58

Septième raison

Elle est très simple.

Chapelle rouge 21 (3).PNG


Si nous restituons cette demi meh nessou manquante à notre anastylose, nous aurons en plan au sol un carré de 12 sur 12, accolé à un rectangle de 18 sur 12.

Avec un 29,5 de longueur de Chapelle et 15 pour le sanctuaire, nous passons à côté de ces très belles proportions

En effet avec 30 et 15,5, nous obtenons un rectangle de proportion 5/2, engendré par un carré 2/2 accolé à un rectangle 3/2....

Elle est simple...mais terriblement efficace et convaincante.
jeanfrancoiswarein@gmail.com
Haut

Jean François
Site Admin
Messages : 2156
Inscription : 18 Juin 2018, 18:28

Re: Chapelle Rouge d'Hatchepsout...

  • Citer

Message par Jean François » 26 Août 2020, 16:38

( Je rappelle que plans et élévations utilisés sont les officiels, avec une reconstruction à 29.5 meh nessou, alors que nous travaillons ici avec les 30 meh nessou que nous considérons comme juste, pour cela nos tracés débordent toujours d'une demi meh nessou à la sortie du sanctuaire)

Huitième raison!


Chapelle rouge 18 (2).PNG
Revenons sur le rectangle 3/2 séparé du rectangle globale 5/2 par le carré de 12 meh nessou

Ce rectangle fait avec sa demi meh nessou en plus restituée, un rectangle de 18 meh nessou sur 12 meh nessou...

Sa périmétrie de 60 meh nessou, tel un aimant, est attiré par l'espace entre les portes d'entrée et de sortie du sanctuaire!

(Sur l'image, la porte est bien évidemment déplacée d'une demi meh nessou en retrait à cause du choix des 29,5 et ne produit pas ce champ quadratique)

Cet espace entre les portes est le diamètre du cercle qui a la même périmétrie que le rectangle 18/12 meh nessou...

Bientôt la Neuvième...et on ne s'arrêtera pas aux symphonies de Beethoven!
jeanfrancoiswarein@gmail.com
Haut

Jean François
Site Admin
Messages : 2156
Inscription : 18 Juin 2018, 18:28

Re: Chapelle Rouge d'Hatchepsout...

  • Citer

Message par Jean François » 26 Août 2020, 18:39

( Je rappelle que plans et élévations utilisés sont les officiels, avec une reconstruction à 29.5 meh nessou, alors que nous travaillons ici avec les 30 meh nessou que nous considérons comme juste, pour cela nos tracés débordent toujours d'une demi meh nessou à la sortie du sanctuaire)


Une Neuvième raison

Et bien, c'est encore une quadrature puisque si nous prenons l'espace de la porte d'entrée de la chambre jusqu'à la porte de sortie du sanctuaire, parcours que fera la barque céleste, et que nous en faisons un carré, le cercle de même surface est très exactement celui qui inscrit en son sein notre Chapelle de 12 meh nessou sur 30 meh nessou...bien sur si nous restituons la demi meh nessou. :D
Chapelle Rouge 20 (3).PNG
Nous avons passé les symphonies de Beethoven et de Bruckner, espérons que notre Dixième sera achevé, ce que Mahler n'aura pas eu le temps...
jeanfrancoiswarein@gmail.com
Haut

Olivier
Site Admin
Messages : 870
Inscription : 17 Juin 2018, 20:39

Re: Chapelle Rouge d'Hatchepsout...

  • Citer

Message par Olivier » 26 Août 2020, 22:11

Bonsoir Jean François,

tes arguments sont très forts en faveur d'une longueur de 30 meh nessou.

Le premier, celui attendu de 3 meh de surface des murs extérieurs sous plafond, me paraît le plus fondamental et permet les quadratures que tu as montrées.

Le choix de 29.5 meh nessou retenus par Carlotti permet d'inscrire la chapelle de 12 x 29.5 dans un cercle au sol de 100 meh nessou de circonférence (29.4 dans l'idéal) et permet de tracer facilement géométriquement la chambre de 7 x 8 et le sanctuaire "pythagoricien" de 8 x 12.

Pour l'instant (en 2 D) je ne retrouve pas avec ce 29.5 cette abondance de quadratures qu'avec 30, mais juste une facilité de traçage qui facilite la réalisation mais semble en appauvrir le sens.

Quid en volumes ?
Amitiés,
Olivier
Haut

Jean François
Site Admin
Messages : 2156
Inscription : 18 Juin 2018, 18:28

Re: Chapelle Rouge d'Hatchepsout...

  • Citer

Message par Jean François » 27 Août 2020, 16:09

Bonjour Olivier

Rectangle 29.5/12, c'est presque un cercle de 100 meh nessou de circonférence, joli.... à retenir.

Mais rien ne va plus pour le reste! Tout s'écroule...

Avec le rectangle 30/12 le rayon du cercle qui l'inscrit fait un joli 16.16 Meh nessou, si proche de 16.18.

Il manque une évidence incontournable, qui doit être sous nos yeux, que je ne perçois pas encore avec la valeur 30, encore moins avec la 29.5 loin derrière avec qu'une seule propriété qui de plus ne s'accorde pas avec le reste.

De plus les cercles de 10, 100, 1000 Meh nessou sont plus communément des diamètres pour le scribe que des circonférences..

Amitiés

Jean François
jeanfrancoiswarein@gmail.com
Haut

Jean François
Site Admin
Messages : 2156
Inscription : 18 Juin 2018, 18:28

Re: Chapelle Rouge d'Hatchepsout...

  • Citer

Message par Jean François » 27 Août 2020, 19:03

Bientôt la Dixième raison...

Toujours aussi raisonnable...mais cette fois ci nous nous attarderons sur la porte d'entrée du sanctuaire, la hauteur du cadre de pierre de 3.99 mètres.

Nous avons tracé un cercle dont le rayon n'est autre que ce cadre.
Chapelle rouge  23 (2).PNG
Nous nous sommes intéressés à sa périmétrie, l'air de rien, avec aucune intention préméditée, simplement méditée...

Aussi nous sommes nous demandés sans aucune originalité, s'il pouvait par hasard se trouver quelque part, même en dessous du tapis, un carré qui aurait peut être, Thot l'aurait caché, l'impertinence de nous tourner encore bourrique en ayant la même périmétrie que le cercle donné par la porte du sanctuaire.

Suffit de demander à cette vénérable Chapelle, qui nous répond le plus gentiment du monde, que ce carré est devant notre nez depuis le début du monde, le joli carré de 12 meh nessou!

Encore une quadrature...
Chapelle rouge 22 (2).PNG
Le singe de Thot en rit de toutes ses dents, l'ibis de tout son bec, et moi-même, sans dent provisoirement en chantier de rénovation...j'attends mon bridge pour sourire comme Clark Gabel... :D
jeanfrancoiswarein@gmail.com
Haut

Jean François
Site Admin
Messages : 2156
Inscription : 18 Juin 2018, 18:28

Re: Chapelle Rouge d'Hatchepsout...

  • Citer

Message par Jean François » 27 Août 2020, 19:18

J'oubliais!

Pour les irréductibles du nombre d'or, le chemin est tout autant possible...

En effet, partant du carré surface Meh, il est simple de tracer le rapport 1 et Phi carré.

Obtenant ainsi 2 mètres, il suffira de doubler pour obtenir un rapport de 2 et Phi carré, soit le cadre de pierre de la porte d'entrée du sanctuaire de 3.99 mètres.

Cette porte pour l'ancien Égyptien, obtenue par le tracé géométrique, n'est pour lui pas une mesure entière, mais une mesure pas entière.

Quoi de plus beau que d'entrer dans le sanctuaire avec un cadre de pierre ayant une hauteur irrationnelle par le chemin de la droite et transcendantale par le chemin de la courbe!

Mais je symbolise...je symbolise, tout ceci n'est que hasard, me diront les historiques.


Voici quatre carrés Meh
SCN_0021 5.jpg
Cliquer sur l'image
SCN_0054.jpg
Cliquer sur l'image

La longueur du sanctuaire de la Petite Chapelle de Sésostris est ici au centimètre près, la hauteur de la porte du sanctuaire d'Hatchepsout
jeanfrancoiswarein@gmail.com
Haut

Olivier
Site Admin
Messages : 870
Inscription : 17 Juin 2018, 20:39

Re: Chapelle Rouge d'Hatchepsout...

  • Citer

Message par Olivier » 27 Août 2020, 23:40

je viens de tomber sur un détail curieux ...

en prenant le 29.5 de longueur, la surface praticable totale au sol est de 191 meh nessou carré (3 x 3 x 2.5 + 7 x 8 + 15 x 8 ) soit 52.36 mètres carrés.

Bizarre !
Amitiés,
Olivier
Haut

Jean François
Site Admin
Messages : 2156
Inscription : 18 Juin 2018, 18:28

Re: Chapelle Rouge d'Hatchepsout...

  • Citer

Message par Jean François » 28 Août 2020, 01:25

3X3X2.5=22.5

8X7+15X8=56+120

22.5+56+120=198.5 Je ne trouve pas 191 meh nessou, 7.5 de trop...

198.5X(0.5236)au carré=54.42 m2

2.5 et 3 meh nessou pour les ouvertures c'est un peu trop, mais 7.5 meh nessou carré en moins c'est un peu trop aussi.

Recalcule demain...fatigue
jeanfrancoiswarein@gmail.com
Haut

Olivier
Site Admin
Messages : 870
Inscription : 17 Juin 2018, 20:39

Re: Chapelle Rouge d'Hatchepsout...

  • Citer

Message par Olivier » 28 Août 2020, 07:55

Bonjour Jean François,

oups, tu as raison, je n'avais englobé que 2 ouvertures dans géogébra, ce n'était donc pas un détail curieux, désolé.
Amitiés,
Olivier
Haut

Jean François
Site Admin
Messages : 2156
Inscription : 18 Juin 2018, 18:28

Re: Chapelle Rouge d'Hatchepsout...

  • Citer

Message par Jean François » 28 Août 2020, 16:15

Complément d'images qui nous permet de voir la porte d'entrée du sanctuaire.

Chapelle rouge Photo 1.jpg
Cliquer sur l'image


Chapelle rouge photo.jpg
Cliquer sur l'image
Chapelle rouge Photo 3.jpg
Cliquer sur l'image
Nous pouvons percevoir les trois portes, la première la porte EST dont la mesure sur le plan est un point d'interrogation car aucune certitude pour cette porte dans sa hauteur, manque de pierre, mais aussi pour son positionnement par rapport à la porte OUEST, 29, 29.5, 30 meh nessou étant trois hypothèses sans certitude.

Le choix a été fait pour 29.5, notre choix théorique penche pour 30 meh nessou.

Porte OUEST, 4.18 mètres, 8 meh nessou de hauteur sur 1.4 mètres de large. Peut être 3 et 1
Porte centrale, 4 mètres de hauteur sur 1.4 mètres de large. Peut-être 2V2 et 1
Porte EST, reconstruite à 3.675 mètres de hauteur, sans certitude et 1.4 mètres de large. Peut être Phi carré et 1.

A un centimètre près, nous pouvons tabler pour 1.41 m.

Chapelle rouge Photo 4.jpg
Cliquer sur l'image

Marcher d'OUEST en EST, vue la réduction progressive des portes donnent la sensation de grandir imperceptiblement et l'inverse d'EST en OUEST, de voir les ouvertures s'élever.
jeanfrancoiswarein@gmail.com
Haut

Olivier
Site Admin
Messages : 870
Inscription : 17 Juin 2018, 20:39

Re: Chapelle Rouge d'Hatchepsout...

  • Citer

Message par Olivier » 29 Août 2020, 01:00

Bonsoir Jean François,

merci pour ces photos remarquables.

Et tes raisons.

Comme Jean Jacques ne vient plus hélas soulever nos "énormités" et que nous devons le faire par nous même, je reviens sur la première et la dernière de tes dix raisons.

J'ai replacé l'ensemble extérieur qui tient dans le triple carré meh, en travaillant un peu du chapeau :-)

carlottichapellerougemeh.png

D'autre part la quadrature de la chambre gauche indiquée par la hauteur de la seconde porte (bravo de l'avoir débusquée, c'est magnifique) ne semble pas dépendre de la longueur totale de notre petite chapelle rouge.
Amitiés,
Olivier
Haut

Jean François
Site Admin
Messages : 2156
Inscription : 18 Juin 2018, 18:28

Re: Chapelle Rouge d'Hatchepsout...

  • Citer

Message par Jean François » 29 Août 2020, 01:29

J'avais écrit...Bientôt la dixième raison, elle n'est pas encore là si c'est bientôt.

La quadrature avec la hauteur de la porte d'entrée n'était pas la dixième raison, mais pour patienter car elle n'arrivera que demain, je la cherche encore :lol:

Le singe de Thot qui me cherche des poux chaque nuit me soufflera bien cette nuit la dixième raison...ou le dixième poux... :lol:

Jean Jacques me manque aussi...
jeanfrancoiswarein@gmail.com
Haut

Jean François
Site Admin
Messages : 2156
Inscription : 18 Juin 2018, 18:28

Re: Chapelle Rouge d'Hatchepsout...

  • Citer

Message par Jean François » 29 Août 2020, 11:54

Il y a une erreur sur le dessin proposé par Carlotti, le rebord du socle ne correspond pas à ce qu'on perçoit sur les photos de la Chapelle.

D'ailleurs ce deuxième rectangle n'est pas mesuré, pas de côte.

Le socle déborde des murs que de 9 centimètres, si on le prend comme mesure, nous n'aurons que 29.87 meh nessou.

Si on prend les corniches, ce n'est pas l'implantation au sol, pas un point de force d'implantation essentiel.

Points de force, centre des colonnes, parfois extérieur et intéreur, centre des murs aussi parfois, extérieur et intérieur des murs.

Ce doit être l'implantation au sol qui entre dans les 3 carrés Meh, et non la chapelle et ses corniches qui y entrent.


Autre conséquence, cela va modifier la largeur, mais de combien, car le deuxième rectangle sur le dessin n'est pas à la place de celui perçu sur la photo !

Mais je peux me tromper...

Continuons à interroger cette si belle Chapelle qui a la conversation facile...
jeanfrancoiswarein@gmail.com
Haut

Jean François
Site Admin
Messages : 2156
Inscription : 18 Juin 2018, 18:28

Re: Chapelle Rouge d'Hatchepsout...

  • Citer

Message par Jean François » 29 Août 2020, 16:20

La Dixième raison

Très simple, la hauteur jusqu'au plafond est de 10 meh nessou, et que 3 carrés Meh surface entrent dans la Chapelle avec seulement une meh nessou de part et d'autre puisque ces carrés passent exactement au milieu des murs de côtés.

Chapelle rouge Meh 1 (2).PNG


Les 3 cubes entiers passent donc par la moitié de murs de côté, entre dans la Chapelle rouge.
Chapelle rouge Meh 2 (2).PNG

Nous avons alors 3 cubes de 3000 meh nessou cubiques...avec la dernière moitié des murs 3600...

5X600 et 6X600

Avec 29.5 ?!?!?
jeanfrancoiswarein@gmail.com
Haut

Olivier
Site Admin
Messages : 870
Inscription : 17 Juin 2018, 20:39

Re: Chapelle Rouge d'Hatchepsout...

  • Citer

Message par Olivier » 30 Août 2020, 15:25

Bonjour Jean François,

oui je pense aussi que la chapelle rouge d'hâche cette soupe se résume en trois cubes d'une meh de surface, diminué d'une meh nessou de chaque côté, afin d'obtenir, 11 ème raison ?, un joli volume de 8 x 30 x 10 soit 2400 meh nessou cubiques.

Edit (oups).

Mais quel est donc le rayon d'une sphère qui occupe le même volume ?
Amitiés,
Olivier
Haut

Olivier
Site Admin
Messages : 870
Inscription : 17 Juin 2018, 20:39

Re: Chapelle Rouge d'Hatchepsout...

  • Citer

Message par Olivier » 31 Août 2020, 15:52

Quelle beauté que cette chapelle de 30 meh nessou de longueur !

Sa surface totale de 3,6 meh enveloppe une surface vide de 2 meh par 2 surfaces de mur de 80 meh nessous carré chacun qui ont la propriété d'avoir 80 meh nessou de périmétrie.


laChapelleRougeDHatchepsout.png
Amitiés,
Olivier
Haut

Répondre
  • Aperçu avant impression

38 messages
  • 1
  • 2
  • Suivant

Revenir vers « La chapelle rouge de Karnac »

Atteindre
  • Catégories du forum
  • ↳   Architecture
  • ↳   Afrique
  • ↳   Architecture de l'Egypte ancienne
  • ↳   Géométrie de la pyramide de Khéops
  • ↳   La petite Chapelle de Sésostris 1
  • ↳   Gizeh : disposition géométrique des pyramides
  • ↳   La pyramide d'Abu Rawash : Redjedef
  • ↳   L'enceinte de Djeser bâtie sur PI ?
  • ↳   Anciennes mesures de surface
  • ↳   A la recherche du Cadastre ...
  • ↳   Les chapelles de Sésostris 1er
  • ↳   La pyramide de Meidoum
  • ↳   le complexe d'Amenemaht III
  • ↳   La chapelle rouge de Karnac
  • ↳   Les chapelles d'albâtre
  • ↳   Le tombeau de Toutânkhamon
  • ↳   Khéphren
  • ↳   Mykérinos
  • ↳   Europe
  • ↳   La cathédrale de Chartres
  • ↳   Notre Dame de Paris
  • ↳   Stonehenge
  • ↳   Chambord
  • ↳   Amériques
  • ↳   Asie
  • ↳   Australie
  • ↳   Arts visuels et kinesthésiques
  • ↳   Afrique
  • ↳   Amériques
  • ↳   Asie
  • ↳   Australie
  • ↳   Europe
  • ↳   la peinture et les 3 tables
  • ↳   Léonard De Vinci
  • ↳   La Cène
  • ↳   L'Annonciation
  • ↳   Sandro Botticelli
  • ↳   La naissance de Vénus
  • ↳   L'Annonciation de Botticelli
  • ↳   La Calunnia di Apelle
  • ↳   Piero Della Francesca
  • ↳   Ecrits
  • ↳   Afrique
  • ↳   Textes hiéroglyphiques
  • ↳   Amériques
  • ↳   Australie
  • ↳   Asie
  • ↳   Europe
  • ↳   En vrac
  • ↳   Musique
  • ↳   Afrique
  • ↳   Amériques
  • ↳   Asie
  • ↳   Australie
  • ↳   Europe
  • ↳   Sciences et techniques
  • ↳   Afrique
  • ↳   Amériques
  • ↳   Asie
  • ↳   Australie
  • ↳   Europe
  • ↳   Sciences Humaines
  • ↳   Afrique
  • ↳   Amériques
  • ↳   Asie
  • ↳   Australie
  • ↳   Europe
  • ↳   Hors sujets en vrac
  • Espaces, formes et contours Espaces, formes et contours
  • Le fuseau horaire est réglé sur UTC+01:00
  • Supprimer tous les cookies du forum
  • Nous contacter

Développé par phpBB® Forum Software © phpBB Limited

Traduction française officielle © Maël Soucaze

PRIVACY_LINK | TERMS_LINK