Bonjour Olivier
Merci pour les photos et ta venue dans La Chapelle rouge, plein de travail passionnant de restauration.
Justement essayons de répondre avec logique et surtout harmonie.
Si on ne sait pas l'exacte longueur, manque de pierre, on peut supposer, en comparaison avec une autre chapelle et certainement celle d' Amenhotep 1er qui la précède, qui elle aussi a son sanctuaire de 8 Meh nessou de large et 15 de longueur et 10 de hauteur...qu'elle a pu s'en inspirer !
Mais, mais, mais...celle qui succèdera à celle d'Hatchepsout sera La Chapelle dite de Philippe Arrhidée, en place encore aujourd'hui.
Si on dit que celle d'Hatchepsout a pris les mesures de celle d'Amenhotep, alors celle de Philippe Arrhidée a donc pris les mesures d'Hatchepsout...
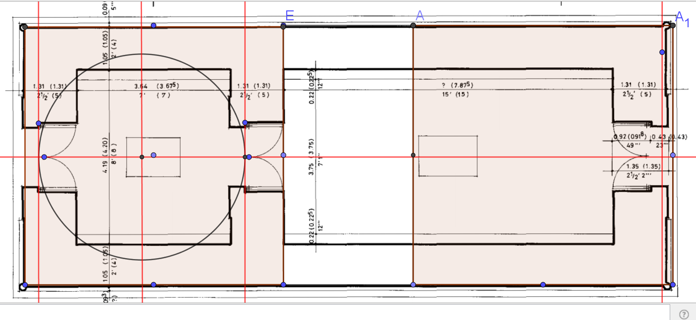
Le problème est que celle de Philippe Arrhidée ne fait pas 15 Meh nessou mais 15 plus 1/2 Meh nessou et autant 8 Meh nessou de largeur...
Donc La Chapelle rouge peut autant avoir eu un 15 et 1/2 Meh nessou de longueur tout comme celle de Philippe...
Surtout que celle d'Hatchepsout pour déduire qu'elle faisait 15 Meh nessou, il fut choisi qu'elle devait avoir 26 corbeilles-neb...
Tout en sachant qu'il était possible qu'elle en ait 27...3x9 n'est-il pas préférable à 2x13...et 27 auraienr donné au sanctuaire 15.5 et à la Chapelle 30 meh nessou.
Et de même en prenant chaque possibilité si bien analysée par Carlotti..
Mais pourquoi avoir choisi 29 et 1/2 au lieu de 30 Meh nessou de longueur totale, et un sanctuaire de 15 au lieu de 15.5 Meh nessou ...
Car si nous prenons 30 et 15.5
Surface de l'implantation des murs externes 12x12 et 12x18 soit 144 et 216 total 360 Meh nessou carré
Salle d'entrée plus sanctuaire, 7x8 et 15.5x8 soit 56 et 124 total de 180 Meh nessou carré
Les anciens Égyptiens devaient refaire les nomes après chaque crue de l'Itérou, recalculer les surfaces, et comme ils avaient la plus belle palette de mesure de surface, la plus élaborée et savante, la mieux tracée, basée sur les racines de 2, 5 et 10, que toutes les autres civilisations et notre modernité confondue, c'est bien Seth s'ils ne l'utilisaient pas pour mettre en logique et harmonie des rectangles...
La surface interne est donc la moitié exacte de la surface au sol de toute la chapelle...
Cette propriété fondamentale sur les rapports de surface aurait dû faire pencher en faveur du choix d'un sanctuaire de 15 et 1/2 meh nessou, tout comme celui de Philippe qui lui succède et un 30 meh nessou de longueur totale, puisque la distance entre les portes du sanctuaire devenue diamètre d'un demi cercle, l'arc mesure parfaitement cette longueur totale de 30 meh nessou...( Mais nous verrons cette autre propriété en temps voulu et il y en a beaucoup d'autres)
Le 216 obtenu au dessus correspond aussi au 216 de La Chapelle de Philippe...en effet 11.5x8 plus 15.5x8 de ses deux pièces donnent aussi 216...
Les volumes maintenant sont aussi en harmonie par duplication, avec la hauteur sous plafond, tout comme les surfaces...puisque la hauteur est 10 sous plafond, avec dessus 11 en externe, une autre mais très belle harmonie.
Volume externe 3960, soit 3600 +360, meh nessou cubique et interne 560 plus 1240, un joli 1800 Meh nessou cubique ou 2160-360

.
Rapport 22/10
Avec 29.5 Meh nessou...désert...pas de sens, de rapport de longueur, de surface, de volume significatifs, rien ne tombe juste...
Nous allons continuer de soulever les possibilités harmoniques nombreuses d'un 30 de longueur et 15.5 pour le sanctuaire qui malheureusement ne font que recouvrir toute possibilité harmonique quelles qu'elles soient avec 29.5 et 15 ou avec la meilleure volonté, je m'épuise dans le désert....
L'autre possibilité qui était de 29, s'éloigne davantage encore que 29.5, laissant toutes les options architecturales à 30 et 15.5.
Oui de langage architecturale et non de pifomètrie pour la largeur et la longueur d'un hangar...
Amitiés
Jean François qui a très chaud sous la canicule...et qui vient d'enlever un paragraphe, la chaleur lui ayant mis un doute qui n'avait pas lieu...ayant confondu le devant et l'arrière de la Chapelle, sainte Mère de Dieu...
