Une enceinte longue de 3142 Meh nessou ... - Page 4 - Espaces, formes et contours

Espaces, formes et contours

Architecture moderne, ancienne, égyptienne, géométrie, harmonie

Accéder au contenu

  • Raccourcis
  • FAQ
  • Connexion
  • Inscription
  • Espaces, formes et contours Espaces, formes et contours CatĂ©gories du forum Architecture Afrique Architecture de l'Egypte ancienne L'enceinte de Djeser bâtie sur PI ?

Une enceinte longue de 3142 Meh nessou ...

Répondre
  • Aperçu avant impression
141 messages
  • PrĂ©cĂ©dent
  • 1
  • 2
  • 3
  • 4
  • 5
  • 6
  • Suivant
Jean François
Site Admin
Messages : 2187
Inscription : 18 Juin 2018, 18:28

Re: Une enceinte longue de 3142 Meh nessou ...

  • Citer

Message par Jean François » 22 Mai 2019, 12:44

Bonjour

Il est vrai qu' à trois nous sommes complémentaires!

Je ramène quand à moi toujours aux surfaces, au volume et à l'espace, car ce sont mes lunettes 3D de sculpteur.

Je pense qu'Ă  ce stade de notre recherche sur l'enceinte de Djeser, il faut tout passer au crible.

Je vais donc calculer toutes les quadratures surface, circonférence, cercle inscrit et exinscrit, carré tout autant, rectangle double carré, doré, Phi carré, racine de deux etc...les demi surfaces, les racines de trois, cinq, dix, les mesures de surfaces, les mesures dans les quatre coudées et les mesures en mètres. Ce dernier étant souvent rencontré sous la forme 2 ( 3 meh nessou 5 shesep 3 djebâ), 4, 5, 7, 10, 15 etc..mètres (Nous ne ferons plus les vierges effarouchées en tombant dessus à cheval sur les principes, ouille, c'est un irrationnel comme les autres, évidemment qu'il ne le nommait pas ainsi, le voyant simplement présent après rabattement ou quadrature etc...)

Il y a du boulot...sous la forme d'un tableau, nous y verrons beaucoup mieux les correspondances!

Imhotep connaissait sa géométrie sur le bout des djebâ!

Amitiés

Jean François
jeanfrancoiswarein@gmail.com
Haut

dugt
Messages : 278
Inscription : 26 Mars 2019, 23:05

Re: Une enceinte longue de 3142 Meh nessou ...

  • Citer

Message par dugt » 22 Mai 2019, 14:09

Et surtout ne pas oublier l'équivalence (fondamentale à mes yeux, car excellent repère): 11mètres = 21 meh nessou

J.Jacques
Haut

Olivier
Site Admin
Messages : 870
Inscription : 17 Juin 2018, 20:39

Re: Une enceinte longue de 3142 Meh nessou ...

  • Citer

Message par Olivier » 22 Mai 2019, 16:25

Bonjour,

Jean François, tu nous as gâtés avec toutes tes fraîches occurrences. Merci !

Jean Jacques, oui 11 mètres = 21.008 meh nessou, à retenir.

Dans la GP on retrouve également le 22 meh nessou = 7 fois PI (Pi pris à 3.14286, 22/7)

Je suis tombé sur le plan du complexe funéraire d’Amenemhat III à Hawara qui m'évoque beaucoup ton quadrillage avec les rectangles :

complexe-func3a9raire-001.png
Il paraît qu'il contient 3000 chambres !
Amitiés,
Olivier
Haut

Jean François
Site Admin
Messages : 2187
Inscription : 18 Juin 2018, 18:28

Re: Une enceinte longue de 3142 Meh nessou ...

  • Citer

Message par Jean François » 22 Mai 2019, 18:08

Bonjour Jean Jacques et Olivier

Tout à fait 11 mètres=21 meh nessou et 44 mètres= 147 meh djeser, 55 mètres= 147 meh remen, 66 mètres= 147 meh cherry et 77 mètres 147 meh nessou.

Donc un cercle de 147 meh nessou de diamètre, c'est en circonférence 147 meh nessou plus 147 meh cherry plus 147 meh remen plus 147 meh djeser.

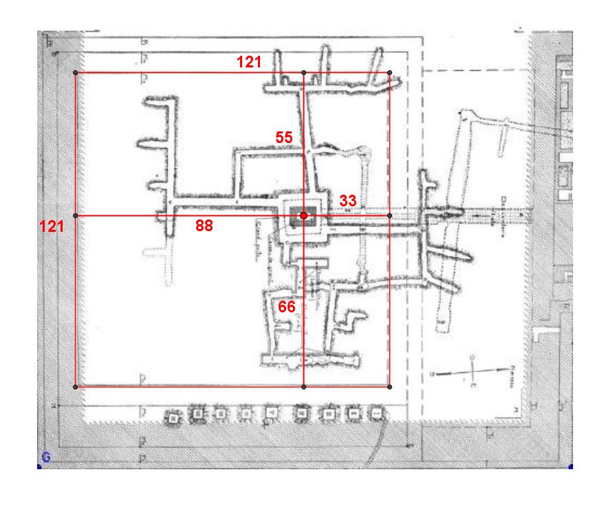
Tout comme un cercle de 77 mètres de diamètre a une circonférence de 77+66+55+44= 242 mètres et 242/2, c'est 121, le grand côté en mètre de la pyramide de Djeser de notre bon Imhotep!

Si ont retire 99 à 121, il reste 22 mètres, et 121(11x11)=3x33(3x11)+ 2x11(2x11) et 121+33=154

En meh nessou, 231 meh nessou moins 189 reste 42 meh nessou et 231=3x63+2x42 et 231(11x21)+ 63=294(14x21)

comme le dit des compagnons ...et leur nombre est 21!

Amitiés

Jean François
jeanfrancoiswarein@gmail.com
Haut

dugt
Messages : 278
Inscription : 26 Mars 2019, 23:05

Re: Une enceinte longue de 3142 Meh nessou ...

  • Citer

Message par dugt » 22 Mai 2019, 19:33

"et 121+33=154" écrit Jean François

121+33=154

Ca, ça se passe à Meïdoum; les amoureux des surfaces vont être servis!!

On ouvre un sujet spécifique?

J.Jacques
Haut

Olivier
Site Admin
Messages : 870
Inscription : 17 Juin 2018, 20:39

Re: Une enceinte longue de 3142 Meh nessou ...

  • Citer

Message par Olivier » 22 Mai 2019, 21:00

Volontiers J. Jacques !

le voici, ici
Amitiés,
Olivier
Haut

Jean François
Site Admin
Messages : 2187
Inscription : 18 Juin 2018, 18:28

Re: Une enceinte longue de 3142 Meh nessou ...

  • Citer

Message par Jean François » 25 Mai 2019, 00:00

Autre petit rappel puisque 11 mètres sont aussi 21 meh nessou, 27 meh nessou sont 14.14 mètres!

Donc un carré de 10 mètres de côté a une diagonale 27 meh nessou, et un carré de 27 meh nessou à une diagonale de 20 mètres!
jeanfrancoiswarein@gmail.com
Haut

Jean François
Site Admin
Messages : 2187
Inscription : 18 Juin 2018, 18:28

Re: Une enceinte longue de 3142 Meh nessou ...

  • Citer

Message par Jean François » 26 Mai 2019, 18:06

Bonjour Ă  tous

L'enceinte, l'enceinte, l'enceinte, mais il n'y a pas qu'elle!

Elle porte ses enfants, mastabas et pyramides qui sont assemblées comme des poupées russes, plutôt poupées papyrus et mamyrus :D !

P2 la pyramide finale contient deux pyramides P1' et P1 qui contient elle mĂŞme le mastabas M3, qui contient le M2, qui contient le M1

D'abord un carré de 63.../63... mètres, le mastabas M1, mais Lauer a arrondi la valeur en dessous comme nous l'a très bien fait remarquer Jean Jacques, c'est plus un 121 meh nessou qu'un 120 et très certainement la mesure de la hauteur de la pyramide finale P2.

En mettant en rapport M1 et M2 apparaît au grand Ré une quadrature. Le carré M1 engendre un cercle de même surface, et le carré qui contient ce cercle c'est tout simplement le carré M2.

M1 et M2 ont une base carrée, ce ne sera plus le cas de M3, P1, P1' et P2 qui seront des bases rectangulaires toutes dans des rapports égaux de longueur divisée par la largeur

M3=P1=P1'=P2=10/9

Il faut savoir pour ce 10/9, qu'un carré de 9 est contenu dans un cercle qui a la même circonférence qu'un carré de 10!

Le choix de ce 10/9 est donc volontaire pour signifier aussi une géométrie et pas qu'une arithmétique.

Il semblerait que la finale P2 de 231 meh nessou sur 208 meh nessou aurait pour hauteur le côté de base du mastabas M1 soit un rapport de 5/ 2.618, même rapport qu'entre le côté de M1 qui commence et la longueur de P2 qui finit.

A signaler que la largeur de P1', c'est la diagonale de M3, et que la largeur de P2 divisée par la largeur
de P1, c'est racine de 2, et bien évidemment leur longueur aussi!

Cela fait beaucoup de coĂŻncidences!

Il en ressort que le passage de M1 à M2 s’opère avec une quadrature surface, de M2à M3 rapport 10/9 quadrature circonférence et périmètre, car le cercle invisible est la diagonale du carré de 9, donc que M3, P1, P1', P2 ont largeur et longueur en quadrature circonférence et périmètre.

Enfin à noter que le périmètre de P1' égale la circonférence d'un cercle de 275 meh nessou de diamètre soit le côté de base de Meïdoum!

Amitiés

Jean François

PS Corrigé les fautes, ne les vois que deux heures après :shock:
jeanfrancoiswarein@gmail.com
Haut

Jean François
Site Admin
Messages : 2187
Inscription : 18 Juin 2018, 18:28

Re: Une enceinte longue de 3142 Meh nessou ...

  • Citer

Message par Jean François » 29 Mai 2019, 01:07

Pour M1 M2 et M3 les assises des pierres sont à 0.30 mètre donc la meh djeser

Pour P1, elles sont de 0.38 mètre, donc la meh remen

Pour P1' et P2, elles sont à 0.52 mètre, donc la meh nessou!

Nous savons donc qu'Imhotep utilisait au moins ces trois coudées! :D
jeanfrancoiswarein@gmail.com
Haut

dugt
Messages : 278
Inscription : 26 Mars 2019, 23:05

Re: Une enceinte longue de 3142 Meh nessou ...

  • Citer

Message par dugt » 29 Mai 2019, 12:11

Bien Vu!!!!!!!

D'autant plus que c'est une époque charnière: passage de la brique à la pierre taillée; nous voyons peut être là, de M1 à P2 l'évolution
de la taille, des dimensions et de la manutention des blocs.

J.Jacques
Haut

Jean François
Site Admin
Messages : 2187
Inscription : 18 Juin 2018, 18:28

Re: Une enceinte longue de 3142 Meh nessou ...

  • Citer

Message par Jean François » 29 Mai 2019, 23:15

Longueur P2/largeur P1= Pi/2
jeanfrancoiswarein@gmail.com
Haut

dugt
Messages : 278
Inscription : 26 Mars 2019, 23:05

Re: Une enceinte longue de 3142 Meh nessou ...

  • Citer

Message par dugt » 30 Mai 2019, 00:20

Pi??
Connais pas!

Mais en effet ces dimensions sont bien dans un rapport 11/7 (231/147)
:D
J.Jacques
Haut

Jean François
Site Admin
Messages : 2187
Inscription : 18 Juin 2018, 18:28

Re: Une enceinte longue de 3142 Meh nessou ...

  • Citer

Message par Jean François » 30 Mai 2019, 19:29

SCN_0017 3.jpg
Mastaba M1
jeanfrancoiswarein@gmail.com
Haut

dugt
Messages : 278
Inscription : 26 Mars 2019, 23:05

Re: Une enceinte longue de 3142 Meh nessou ...

  • Citer

Message par dugt » 30 Mai 2019, 22:48

Jean François, si tu voulais agrandir l'image, ce serait plus lisible.
:roll:
J.Jacques
Haut

Jean François
Site Admin
Messages : 2187
Inscription : 18 Juin 2018, 18:28

Re: Une enceinte longue de 3142 Meh nessou ...

  • Citer

Message par Jean François » 31 Mai 2019, 00:41

Bin, faut taper sur l'image et la grande image magique apparaît, qu'on peut agrandir jusqu'à voir la fibre du papier avec des acariens dans les cordages qui nous sourient. :lol:

Comment mets-tu tes images? Il faut passer par pièces jointes, ajouter des fichiers et taper sur insérer. Ton image alors devrait s'agrandir en tapant dessus!

Quand je passais par Tynipic, mon image ne pouvait pas s'agrandir...

Ce site est bien fait finalement!

Amitiés

Jean François
jeanfrancoiswarein@gmail.com
Haut

dugt
Messages : 278
Inscription : 26 Mars 2019, 23:05

Re: Une enceinte longue de 3142 Meh nessou ...

  • Citer

Message par dugt » 31 Mai 2019, 01:21

Bon, ce soir j'y arrive pas…
Vais me faire dormir les yeux!!
Haut

Jean François
Site Admin
Messages : 2187
Inscription : 18 Juin 2018, 18:28

Re: Une enceinte longue de 3142 Meh nessou ...

  • Citer

Message par Jean François » 03 Juin 2019, 00:48

Si nous avons un cercle de départ de 1000 meh nessou de diamètre, dont la circonférence détermine le périmètre de l'enceinte, le côté du carré de même surface que ce cercle divisé par la racine de 3 donne 511.66 meh nessou, soit la largeur du double carré intérieur, on est très proche du 512 annoncé par Lauer.

Cette racine de 3 déterminerait les dimensions du double carré, mais aussi
l'emplacement de la pyramide... :)

Amitiés

Jean François
jeanfrancoiswarein@gmail.com
Haut

Olivier
Site Admin
Messages : 870
Inscription : 17 Juin 2018, 20:39

Re: Une enceinte longue de 3142 Meh nessou ...

  • Citer

Message par Olivier » 03 Juin 2019, 18:27

Excellent Jean François !

très bien vu, ça m'a laissé sans voix, et je cogite là dessus sans cesse depuis ...
Amitiés,
Olivier
Haut

Olivier
Site Admin
Messages : 870
Inscription : 17 Juin 2018, 20:39

Re: Une enceinte longue de 3142 Meh nessou ...

  • Citer

Message par Olivier » 03 Juin 2019, 19:05

avec un double carré de 1, donc de périmètre 6 (circonférence d'un cercle de diamètre 1.9098 ...), on fait un premier rabattement de cercle de rayon la longueur du rectangle (2) et on obtient le racine de 3 sur l'autre côté, de là second rabattement de cette racine de 3 sur l'autre côté et on obtient racine de 2.

Je n'ai toujours pas trouvé comment se passer des rabattements :-(

La surface du rectangle de côté racine de 3 et de côté 1 est racine de 3 bien sûr (édit désolé).

njn2.png

Si on trace le cercle qui s'inscrit dans ce rectangle racine de 3 sur 1, de rayon 2 donc, on obtient facilement un arc de cercle de 0.5236 qui est égal aussi à 2 fois Phi carré divisé par 10 (cet arc mesurerait Phi carré divisé par 10 en partant d'un double carré de 0.5). Ce rectangle permet de partager le cercle en 6 portions hexagonales.

Pour l'enceinte de Djeser Jean Jacques a montré le rabattement racine de 3 pour la longueur, et toi tu viens nous montrer que la largeur du double (édit) carré intérieur est telle qu'elle est un multiple de racine de 3 valant le côté d'un carré de même surface qu'un cercle de diamètre 1000.

ça avance !
Amitiés,
Olivier
Haut

Jean François
Site Admin
Messages : 2187
Inscription : 18 Juin 2018, 18:28

Re: Une enceinte longue de 3142 Meh nessou ...

  • Citer

Message par Jean François » 03 Juin 2019, 23:56

Bonsoir Jean Jacques et Olivier

Ce double carré, dont sa largeur passée par la racine de 3 donne le côté du carré de même surface que l'aire du cercle de 1000 meh nessou de diamètre, fait donc en surface deux fois 2618 meh!

Nous nageons dans le sirop de sublime des coïncidences à répétition, le singe de Thot nous fait des grimaces et son ibis courbe le bec jusqu'à nous le clouer.

Les coïncidences à répétition ne sont que le sublime de toute harmonie digne de ce nom, de toute véritable architecture... à trois tables...

Amitiés

Jean François
jeanfrancoiswarein@gmail.com
Haut

Jean François
Site Admin
Messages : 2187
Inscription : 18 Juin 2018, 18:28

Re: Une enceinte longue de 3142 Meh nessou ...

  • Citer

Message par Jean François » 08 Juin 2019, 18:02

SCN_0025 6.jpg
Le double carré intérieur de l'enceinte de Djeser, ABCD, tout comme l'enceinte externe, part d'un cercle de 1000 meh nessou de diamètre, un lotus.

Ce cercle a son carré égal en surface, dont le côté fait naître un triangle équilatérale.

Le cercle qui inscrit ce triangle a pour rayon la largeur du double carré intérieur de l'enceinte de Djeser et pour diamètre sa longueur.

Deux portes ont du être franchies, la porte de la quadrature surface et celle de la racine de 3, grâce au triangle équilatéral, pour obtenir cette table qui certainement en cache deux autres...

Là, mon petit djébâ me dit à l'oreille que je ne reviendrai plus en arrière...

Amitiés

Jean François qui se demande ce que nous réserve cette table d'harmonie maintenant évidente.

NB: Je continue mes dessins à main levée, assis sur terre en tailleur, sans règle ni compas, en écoutant Mozart. Si vous voyez d'autres corrélations grâce à la précision diabolique de geogebra, je suis preneur...Mozart aussi! :D
jeanfrancoiswarein@gmail.com
Haut

dugt
Messages : 278
Inscription : 26 Mars 2019, 23:05

Re: Une enceinte longue de 3142 Meh nessou ...

  • Citer

Message par dugt » 14 Juin 2019, 16:34

Bonjour,

Jean François écrit: "Comme quoi, sans mesure fiable, nous ne pouvons travailler…"

Et bien, travaillons autrement.
Les anciens égyptiens ne traçaient pas leurs épures qu'avec quelques règles de bois aux divisions approximatives, mais surtout avec des relations simples, des rapports, ce qu'on appelle aujourd'hui des fractions; les papyrus mathématiques en sont farcis.

Voici un exemple de ce que l'on peut tirer de plans non cotés, mal scannés, mal positionnés dans les ouvrages; je n'utilise aucune cote mais uniquement des proportions; et j'en appelle à tous mes détracteurs d'aller mesurer sur place pour vérifier…

Position du puit dans le mastaba initial M1:

démo forum EFC 41.JPG
démo forum EFC 42.JPG
démo forum EFC 43.JPG
On peut déjà mettre en évidence les rapports simples 1/2, 3/4, 3/5, 5/3, 5/8, 8/5 que nous avons souvent rencontrés dans les monuments, ainsi que le fameux triangle rectangle 3.4.5, le tout dans un carré de 11 de coté.
[ j'ai divisé les nombres de la troisième figure par 11 pour faire encore plus simple]

Et ce n'est pas tout,
Ă  bientĂ´t

J.Jacques
Haut

Jean François
Site Admin
Messages : 2187
Inscription : 18 Juin 2018, 18:28

Re: Une enceinte longue de 3142 Meh nessou ...

  • Citer

Message par Jean François » 14 Juin 2019, 18:23

Bonjour

Je pense que les Égyptiens avaient leurs tracés préparatoires et pouvaient être incroyablement précis sur des plaques de plâtres ou bois enduit au plâtre qui permettaient une très grande finesse. Des dessins ont été retrouvés ainsi que des maquettes.

"Cet autrement" je le reconnais aussi, mais encore faut-il que les dessins soient impeccables.

Car utiliser une échelle sur des dessins qui interprètent déjà des mesures, puis en tirer les mesures à nouveau,' ce sont des imprécisions supplémentaires qui s'ajoutent encore...

Mais ici je suis entièrement d'accord avec toi comme je l'ai montré dernièrement avec le dessin du mastabas M1, c'est impossible de faire marche arrière.

C'est l'évidence et la logique même, que l'emplacement du puits par des modules de 11 Meh nessou.

Il y a même le 99 qui sort pour la triangulation rationnelle du carré nécessaire aux angles droits tracés sur le sol.

Ce qu'il faut articuler maintenant, c'est ce que nous apprennent les différents mastabas et pyramides en harmonie avec l'enceinte, les autres cours et édifices intérieurs.

Il faut travailler avec les hauteurs, car toute architecture est plan mais aussi élévation.

A-t-on les hauteurs précises des mastabas et pyramides, car comment peut-on comprendre le protocole qui a élaboré un plan sans l'élévation qui en est son corolaire?

Il faut que nous cherchions aussi dans d'autres civilisations, et notre moyen âge, car c'est eux qui en sympathie vont mettre en lumière ce que nous n' arrivons pas à voir, la simplicité....( ce qui ne veut pas dire simpliste, mais clarté, logique et harmonie.)

Amitiés

Jean François

NB je viens de rectifier mon texte très mal tapé, envoyé trop vite croyant l'avoir seulement prévisualiser pour l'envoyer plus tard...
jeanfrancoiswarein@gmail.com
Haut

dugt
Messages : 278
Inscription : 26 Mars 2019, 23:05

Re: Une enceinte longue de 3142 Meh nessou ...

  • Citer

Message par dugt » 18 Juin 2019, 16:45

Reprenons cette petite balade au cœur de la pyramide.

Les diagonales de M1 font apparaître de nouveaux points caractéristiques, et nous avons maintenant des segments de longueur 1,2,3,5,8
(ce qui me fait penser à quelques premières notes de la suite de Fibonacci, ici en Thot Majeur :D )



On peut également positionner les intersections de ces diagonales, ainsi que celle de P1.
En observant le plan de Lauer sur ce premier sous-sol, c'est comme s'il manquait un morceau de galerie pour fermer le premier carré.
En orange sur le dessin; galerie inexplorée?




Passons au second sous-sol; ici les galeries semblent éviter une zone interdite, en mauve sur le dessin



En voici la position de son centre



Un puits inexploré?


J'en fini pour aujourd'hui par deux lignes pointillées, distantes de 140Cr, dont je ne vois pas encore la signification




Voilou
J.Jacques
Pièces jointes
démo forum EFC 55.JPG
démo forum EFC 54.JPG
démo forum EFC 53.JPG
démo forum EFC 52.JPG
démo forum EFC 51.JPG
démo forum EFC 45.JPG
Dernière édition par dugt le 03 Juin 2020, 00:14, édité 3 fois.
Haut

Olivier
Site Admin
Messages : 870
Inscription : 17 Juin 2018, 20:39

Re: Une enceinte longue de 3142 Meh nessou ...

  • Citer

Message par Olivier » 18 Juin 2019, 22:21

Merci J. Jacques.


pour l'évitement du second sous sol, la première idée qui vient évidemment à l'esprit est le soucis d'éviter une fragilité d'ouvrage du premier sous sol. Quels sont les détails qui t'amènent à former l'hypothèse d'un puit inexploré à cet endroit ?

Quelles dimensions a le premier carré qui pourrait être ainsi complété ?
Amitiés,
Olivier
Haut

Répondre
  • Aperçu avant impression

141 messages
  • PrĂ©cĂ©dent
  • 1
  • 2
  • 3
  • 4
  • 5
  • 6
  • Suivant

Revenir vers « L'enceinte de Djeser bâtie sur PI ? »

Atteindre
  • CatĂ©gories du forum
  • ↳   Architecture
  • ↳   Afrique
  • ↳   Architecture de l'Egypte ancienne
  • ↳   GĂ©omĂ©trie de la pyramide de KhĂ©ops
  • ↳   La petite Chapelle de SĂ©sostris 1
  • ↳   Gizeh : disposition gĂ©omĂ©trique des pyramides
  • ↳   La pyramide d'Abu Rawash : Redjedef
  • ↳   L'enceinte de Djeser bâtie sur PI ?
  • ↳   Anciennes mesures de surface
  • ↳   A la recherche du Cadastre ...
  • ↳   Les chapelles de SĂ©sostris 1er
  • ↳   La pyramide de Meidoum
  • ↳   le complexe d'Amenemaht III
  • ↳   La chapelle rouge de Karnac
  • ↳   Les chapelles d'albâtre
  • ↳   Le tombeau de Toutânkhamon
  • ↳   KhĂ©phren
  • ↳   MykĂ©rinos
  • ↳   Europe
  • ↳   La cathĂ©drale de Chartres
  • ↳   Notre Dame de Paris
  • ↳   Stonehenge
  • ↳   Chambord
  • ↳   AmĂ©riques
  • ↳   Asie
  • ↳   Australie
  • ↳   Arts visuels et kinesthĂ©siques
  • ↳   Afrique
  • ↳   AmĂ©riques
  • ↳   Asie
  • ↳   Australie
  • ↳   Europe
  • ↳   la peinture et les 3 tables
  • ↳   LĂ©onard De Vinci
  • ↳   La Cène
  • ↳   L'Annonciation
  • ↳   Sandro Botticelli
  • ↳   La naissance de VĂ©nus
  • ↳   L'Annonciation de Botticelli
  • ↳   La Calunnia di Apelle
  • ↳   Piero Della Francesca
  • ↳   Ecrits
  • ↳   Afrique
  • ↳   Textes hiĂ©roglyphiques
  • ↳   AmĂ©riques
  • ↳   Australie
  • ↳   Asie
  • ↳   Europe
  • ↳   En vrac
  • ↳   Musique
  • ↳   Afrique
  • ↳   AmĂ©riques
  • ↳   Asie
  • ↳   Australie
  • ↳   Europe
  • ↳   Sciences et techniques
  • ↳   Afrique
  • ↳   AmĂ©riques
  • ↳   Asie
  • ↳   Australie
  • ↳   Europe
  • ↳   Sciences Humaines
  • ↳   Afrique
  • ↳   AmĂ©riques
  • ↳   Asie
  • ↳   Australie
  • ↳   Europe
  • ↳   Hors sujets en vrac
  • Espaces, formes et contours Espaces, formes et contours
  • Le fuseau horaire est rĂ©glĂ© sur UTC+02:00
  • Supprimer tous les cookies du forum
  • Nous contacter

DĂ©veloppĂ© par phpBB® Forum Software © phpBB Limited

Traduction française officielle © MaĂ«l Soucaze

PRIVACY_LINK | TERMS_LINK